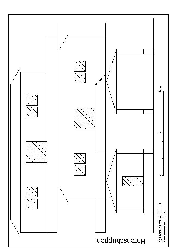
Baupläne: Hafenschuppen

Bild 1: Hafenschuppen. Für ein H0-maßstäbliches pdf einfach draufklicken, es gibt den
Bauplan auch als
jpg
Das freie Vorbild dieses Schuppens stand im Hafen von Kappeln zwischen den meterspurigen Gleisen der Eckernförder und Flensburger Kreisbahnen und dem normalspurigen Gleis der Schleswiger Kreisbahn. Im Original hatte der Schuppen drei Tore auf jeder Seite und war wesentlich länger. Eine Verlängerung des Schuppens ist sicher leicht möglich.
Gezeichnet mit Designer 6.0.
Diese Seite wurde am
28.05.2014 zum letzten Mal bearbeitet.
© 2001-2025 Frank Wieduwilt,